Een prachtig kasteeldomein met twee jeugdverblijven én een kasteel om te eten en te vergaderen.
De Tilk
De Tilk is een comfortabel en huiselijk jeugdverblijf dat bestaat uit twee verdiepingen met elk 23 bedden.
Vergadertafels, stoelen en een whiteboard zijn aanwezig.
De benedenverdieping:
- Vijf slaapkamers voor in totaal 23 personen.
- Elke slaapkamer heeft twee lavabo's, een douche en een toilet.
- NIEUWE vergaderzaal tot 80 personen met groot tv-scherm, whiteboard, internet, bar, keukentje
- NIEUWE toiletten buiten de slaapkamers
- Living met zetels, tafels en stoelen voor 20 personen, digitale tv, internet
- Kitchenette met kookvuur, koffiezet en bar
De bovenverdieping:
- Zes slaapkamers voor in totaal 23 personen.
- Elke slaapkamer heeft twee lavabo's, een douche en een toilet (één slaapkamer heeft enkel één lavabo).
- Er zijn ook nog twee gemeenschappelijke toiletten.
Er zijn stapelbedden en bedden voor één persoon aanwezig. Twee kamers op de gelijkvloerse verdieping en het sanitair ervan zijn volledig aangepast aan personen met een beperking.
Klik hier voor het grondplan van het gelijkvloers.
Klik hier voor het grondplan van de eerste verdieping.
“Toegankelijk? Alle gebouwen zijn toegankelijk!”
De Stobbe
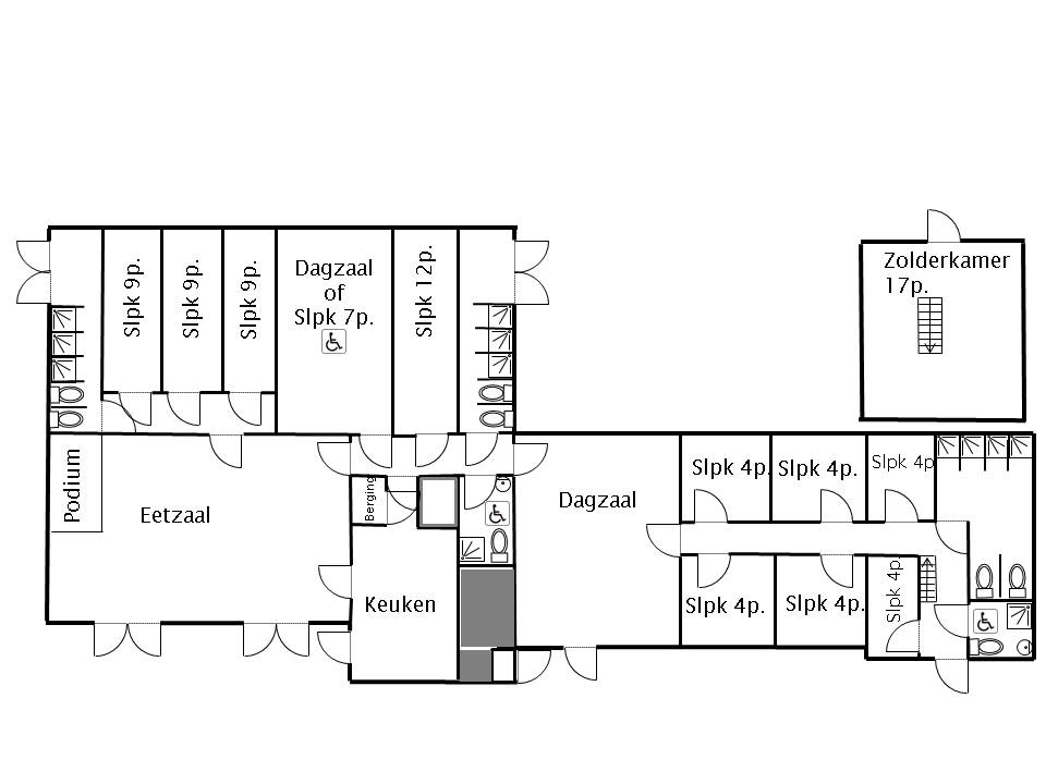
De Stobbe is het grote gebouw op ons domein. Dit is het ideale huis voor ongeveer elke groep. Je kan er zelf koken, maar groepen kunnen ook kiezen voor een verblijf met maaltijden.
Door de goede mix en de spreiding van zowel grote kamers (drie kamers van 9 personen, één van 12 personen en een slaapzolder van 17 personen) als kleine slaapkamers (zes kamers van 4 personen), kan zowat elke groep zijn gedroomde verdeling waar maken.
Er zijn in totaal:
- 12 slaapkamers
- 3 dagzalen (plus eventueel 2 in het kasteel)
- een zeer goed uitgeruste keuken
- 5 sanitaire blokken waarvan er 2 volledig toegankelijk zijn
Klik hier voor het volledige grondplan van De Stobbe.
“Volpension? Standaard is een verblijf met maaltijden een volpensionverblijf (overnachting + 3 maaltijden), maar in overleg kunnen wij ons zeker aanpassen aan de noden van jouw groep.”
Het Kasteel
Maak je verblijf nog wat unieker en gebruik één van onze schitterende vergaderzalen in het kasteel. Ze zijn elk ongeveer 45 m² groot en beschikken over tafels en stoelen een een whiteboard. De Balkenzaal heeft het meeste kasteelkarakter en is uitgerust met een vaste beamer en geluidsversterking.
Bij een verblijf in volpension kan je in de eetzalen van het kasteel genieten van onze maaltijden met veel verse producten en extra aandacht voor diëten, halal en allergieën. Afwisselend zetten wij lekkere Vlaamse kost op het menu maar graag verrassen we onze gasten ook met een avontuurlijks of exotisch gerecht. Ideaal voor groepen op zoek naar een verblijf met net dat tikkeltje extra.
































